NOWE NOWOCZESNE W NOWYM BUDYNKU W PEŁNI WYPOSAŻONE

Mieszkanie na wynajem
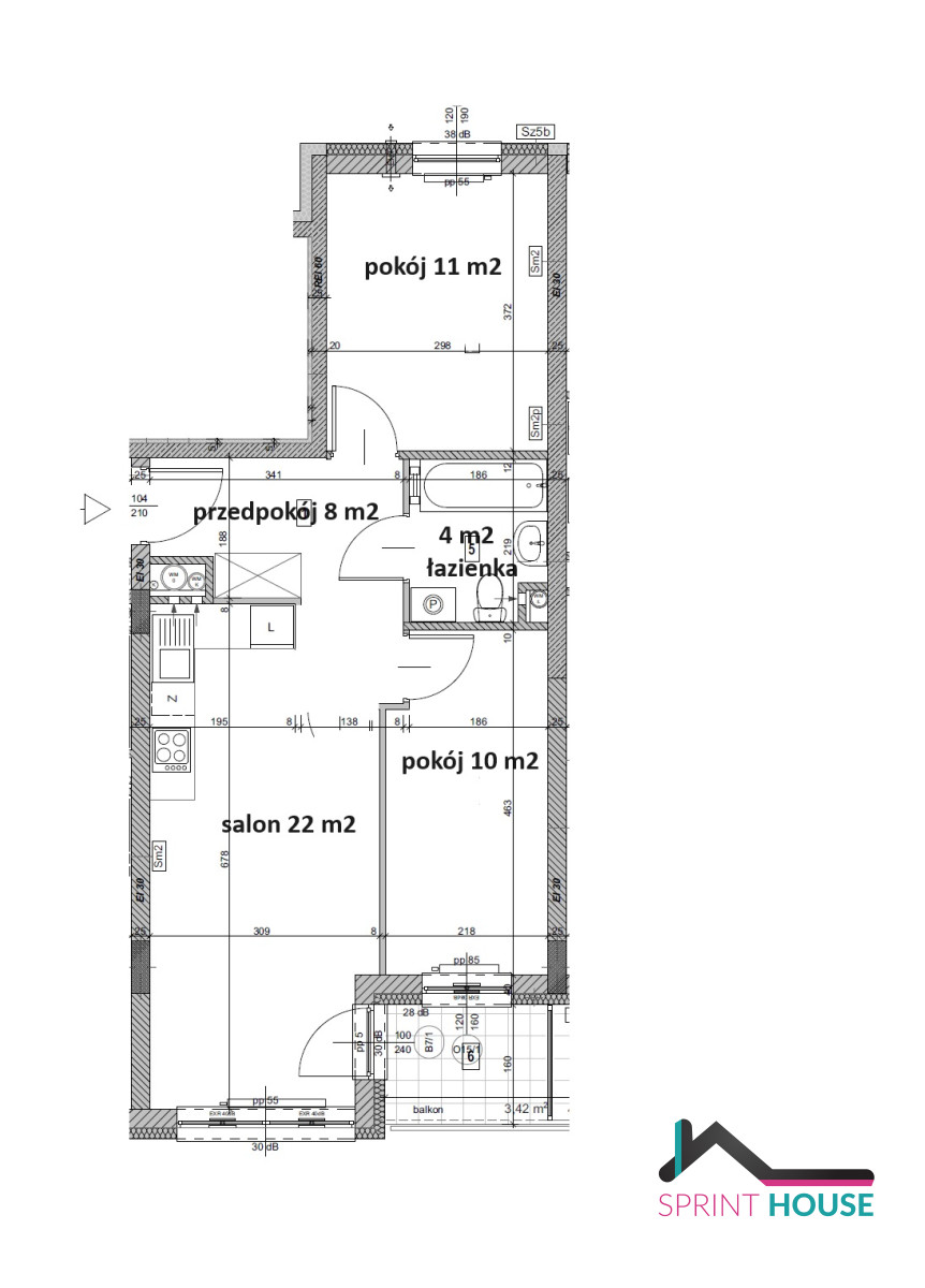
4 200,00 PLN, Pow. 55 m2
Typ nieruchomości:
Mieszkanie
Powierzchnia:
55 m2
Typ transakcji:
wynajem
Liczba pokoi:
3
Lokalizacja:
Warszawa Praga-Południe , Jana Nowaka-Jeziorańskiego
Rok budowy:
2024
Piętro:
3 na 7
Numer oferty:
OP960581
Cena za m2:
76,36 PLN
Czy poszukujesz NOWEGO, NOWOCZEŚNIE WYKOŃCZONEGO mieszkania w świetnej lokalizacji? Czy bliskość wszelkich sklepów, TRZECH CENTRÓW HANDLOWYCH, PARKU jest dla Ciebie ważna? Czy szukasz spokoju niedaleko centrum miasta? Jeśli tak, to trzypokojowe mieszkanie czeka na Ciebie wolne od zaraz!

W SKRÓCIE:
Mieszkanie znajduje się obok CH PROMENADY! Od Centrum będzie dzielić Cię 15 minut jednym autobusem. 3 minuty spacerem i jesteś w Parku nad Balatonem! 200 metrów od Centrum Handlowe Promenada oraz 500 metrów od Centrum Handlowe Gocław. Lokal znajduje się na 3 piętrze i spory balkon. Składa się z salonu z aneksem kuchennym, oddzielnej sypialni z pojemną szafą, pokoju z szafą, łazienki oraz przedpokoju także z szafą. Do mieszkania przynależy komórka lokatorska!

CO WYRÓŻNIA TO MIESZKANIE?
Mieszkanie rozkładowe, w NOWYM budynku. Mieszkanie znajduje się przy cichej ulicy i jest świetnie skomunikowane. Stąd do Centrum dojedziesz w 10-15 minut. Spokojne sąsiedztwo, bezpieczeństwo, zielona okolica - PARK 500 metrów od budynku. Mieszkanie DWUSTRONNE - okna od południa oraz północy. Wszystkie meble i sprzęty są na wyposażeniu.

KOGO SZUKAMY?
Mieszkanie idealne dla pary lub singla, chcących korzystać z uroków miasta i ceniących swój codzienny czas na komunikację po stolicy.
Szukamy osób bezproblemowych, uczciwych i rzetelnych oraz chcących wynająć mieszkanie najchętniej na kilka lat (minimum rok), 

WARUNKI NAJMU:
Mieszkanie wolne od zaraz, miejsce postojowe oraz komórka lokatorska, kaucja 5700 zł, najem okazjonalny.
Dodatkowo płatne opłaty eksploatacyjne do wspólnoty 1000 zł, komórka lokatorska i miejsce postojowe 300 zł, oraz prąd.

ZAPROSZENIE:
Zapraszam do obejrzenia mieszkania zanim zniknie z rynku!
Nieprawidłowy adres E-mail