Marki, Miedziana

Mieszkanie na sprzedaż
710 000,00 PLN, Pow. 88 m2
Typ nieruchomości:
Mieszkanie
Powierzchnia:
88 m2
Typ transakcji:
sprzedaż
Liczba pokoi:
4
Lokalizacja:
Marki , Miedziana
Rok budowy:
1989
Piętro:
2 na 2
Numer oferty:
34964550794
Cena za m2:
8 068,18 PLN
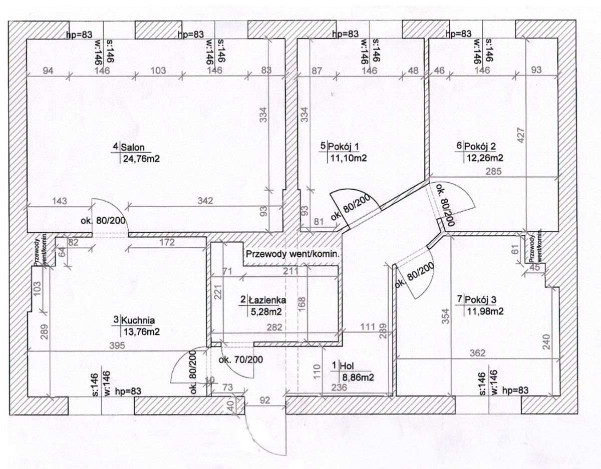
Do sprzedaży duże mieszkanie o powierzchni całkowitej 88 m2  w Markach.
Mieszkanie powstało z połączenia 2 mieszkań i stanowi obecnie 4 pokojowe mieszkanie z widną kuchnią i łazienką. 
POMIESZCZENIA     Powierzchnia m2
Salon                                         24,76
Kuchnia                                     13,76
Sypialnia 1                                 11,10
Sypialnia 2                                 12,26
Sypialnia 3                                  11,98
Łazienka                                      5,28
Hall                                              8,86
Na podłodze ułożona mozaika drewniana.
Instalacja miedziana 2-przewodowa.
Ogrzewanie i podgrzewanie wody z własnej instalacji z piecem gazowym. Koszt gazu to około 770,- zł co 2 miesiące. 
Czynsz administracyjny z funduszem remontowym dla 4 osób to 550,- zł z zaliczkami na wodę i wywozem śmieci.
Właściciele mieszkania korzystają z:
- 2 komórek lokatorskich zlokalizowanych na terenie osiedla
- garażu blaszanego i miejsca postojowego.
Budynek mieszkalny 2 piętrowy bez windy. Mieszkanie zlokalizowane na 2 piętrze. Wejście do mieszkania z zewnętrznej antresoli.
Pełna własność z Księgą Wieczystą. Możliwy zakup z kredytem.
Mieszkanie bardzo ciche w budynku zlokalizowanym na bardzo dużej działce.w związku z tym są duże odległości pomiędzy sąsiadującymi budynkami.
OKOLICA:
W najbliższej okolicy stadion sportowy. 
Sklepy spożywcze i przemysłowe, przedszkola, szkoły, żłobki, restauracje, bary.
Blisko do komunikacji miejskiej.
ZAPRASZAMY NA PREZENTACJĘ

Nieprawidłowy adres E-mail